Ismertető
MINIMÁL STÍLUSÚ, ÚJ ÉPÍTÉSŰ ház eladó III. kerület EXKLUZÍV, modern lakóparkjában, a HARSÁNY LEJTŐ II. ütemében
Átadás: 2025 nyár
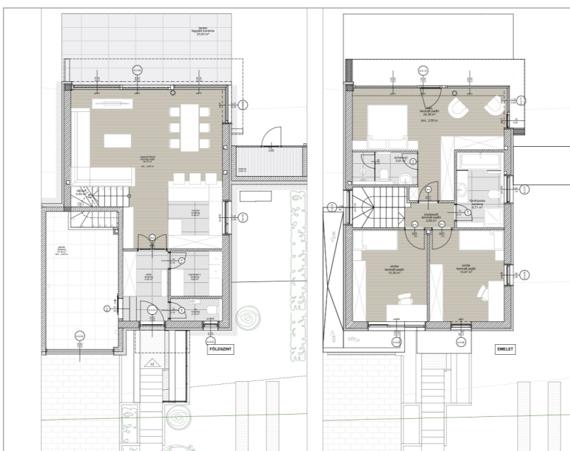
Az eladásra kínált ÖRÖK PANORÁMÁS ikerház a legfelső utcájában, a Turbolya közben épül, GYÖNYÖRŰ KILÁTÁSSAL A FÖLDSZINTRŐL ÉS EMELETRŐL egyaránt. A környező telkeken befejezett, modern stílusú házakkal, igényes környezettel. A két ikerfél CSAK A GARÁZSOKKAL KAPCSOLÓDIK egymáshoz, egymástól független utcai bejáratokkal és szeparált kerttel rendelkeznek.
A nappali és a szülői háló HATALMAS ÜVEGFELÜLETEKKEL nyílik a kert és az elvehetetlen panoráma felé. A tágas nappali-étkező-konyha tere dupla toló ajtóval nyitható össze a terasszal és a kerttel. A földszinten dolgozó helység van kialakítva. Az emeleten 20 m2-es szülői háló önálló fürdővel rendelkezik, a két gyerekszobához szintén külön fürdőszoba tartozik.
A feltüntetett ár KULCSRAKÉSZ állapotra vonatkozik, mely a következőket tartalmazza a teljesség igénye nélkül:
- Hőszivattyús hűtés-fűtés rendszer
- Központi szellőztető rendszer, prémium (Zehnder) típus
- Motoros zsalúzia árnyékoló minden nyílászárón
- Óriási üvegfelületek, nappaliban emelő-toló kivitelben
- Prémium beltéri ajtók
- Magas minőségű beltéri és kültéri hidegburkolatok
- Vinyl padló burkolat
- Hansgrohe csaptelepek
- Duravit szaniterek
- Üveg elektromos kapcsolók és dugaljak
Részletek
-
Építés éve:
2025 -
Szobák száma:
4 -
Állapot:
új -
Fűtés:
hőszivattyús -
Épület típusa:
ikerház -
Szintek száma:
2 -
Telekméret:
430 m2 -
Övezet:
lakó -
Tetőtér:
nem beépíthető -
Fényviszonyok:
verőfényes
